Protektor Headquarter: Structural Extension and Energetic Refurbishment

The project deals with the extension and renovation of the headquarter of the internationally managed company Protektor, which manufactures lightweight profiles.
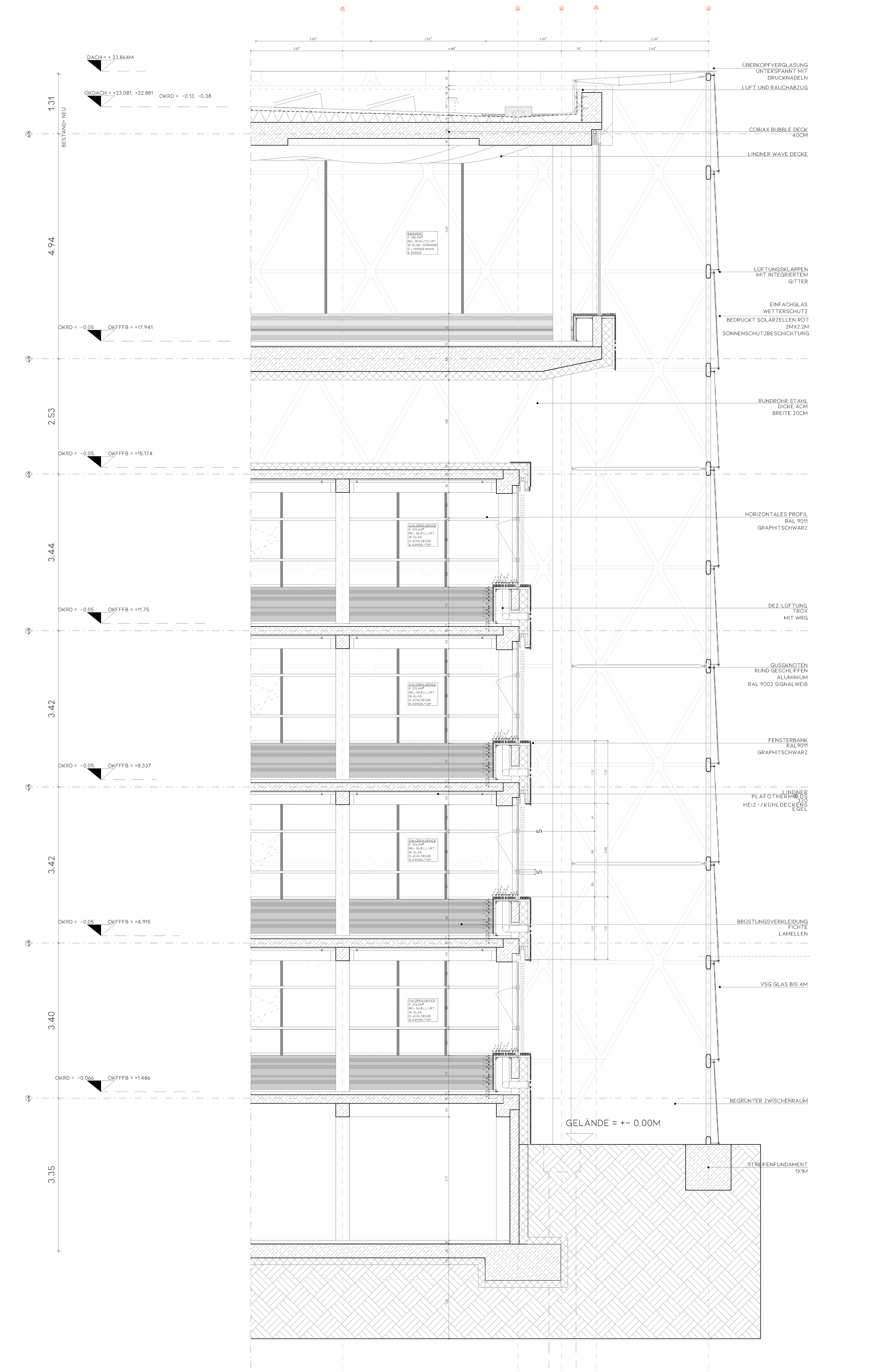
The major challenge lies in overcoming the load-bearing structure of the existing building, as its load-bearing capacity has been fully exhausted. Protektor is looking for identity-creating architecture, as the existing building from the 1960s can no longer meet the requirements and image. 
A new extension, which will in future be used for company meetings and other internal events, as well as the newclimate-active , scaled glass shell, create this radiance with which the company can present itself internationally.