Terrace³: World Health Organization Forum
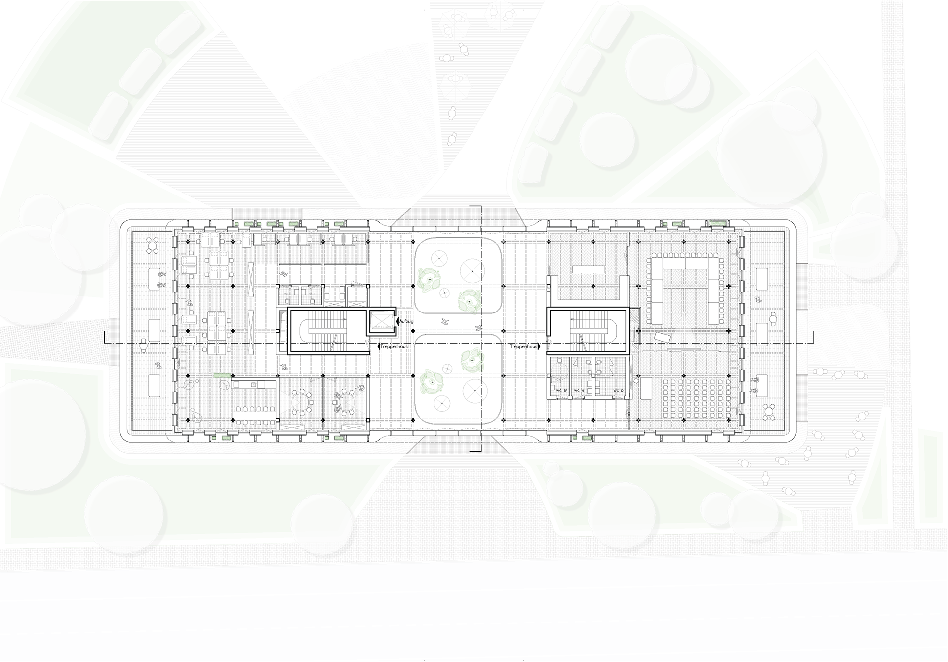
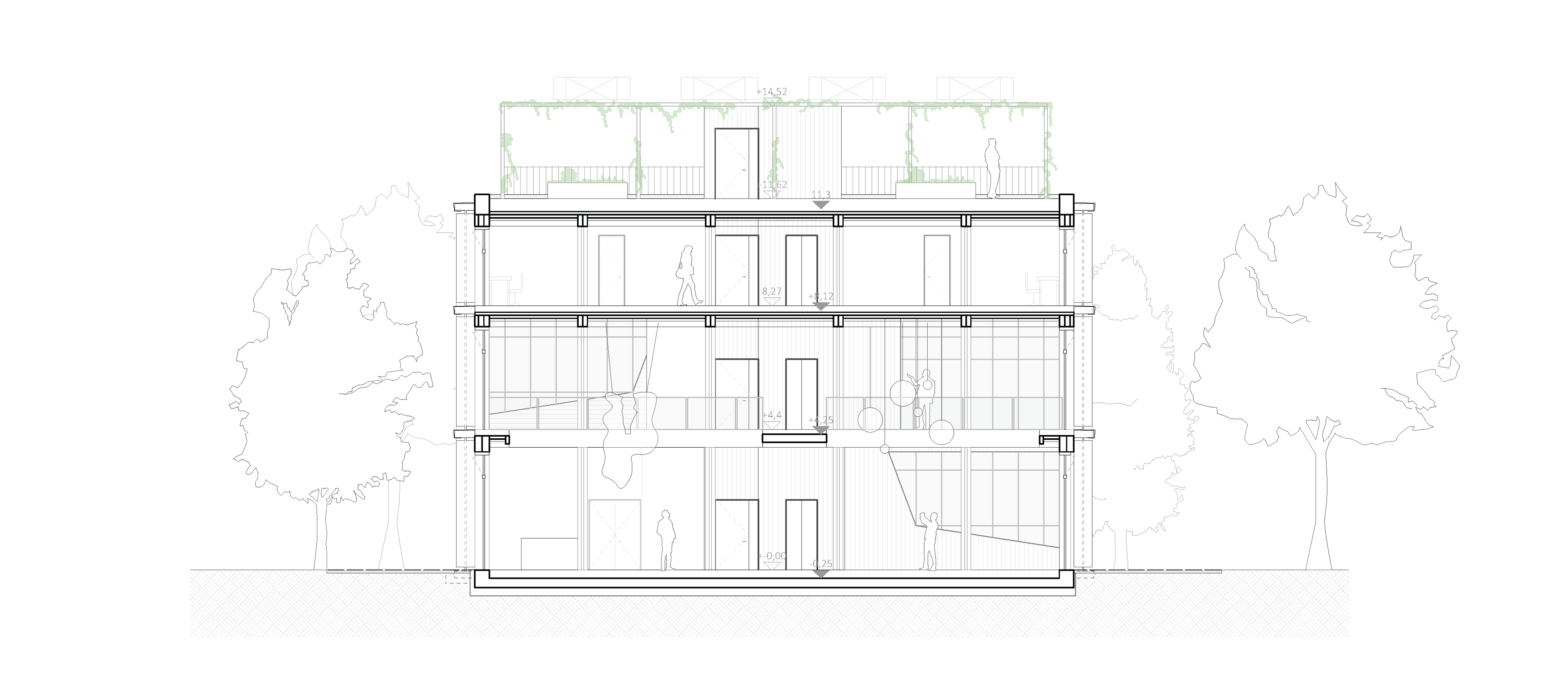
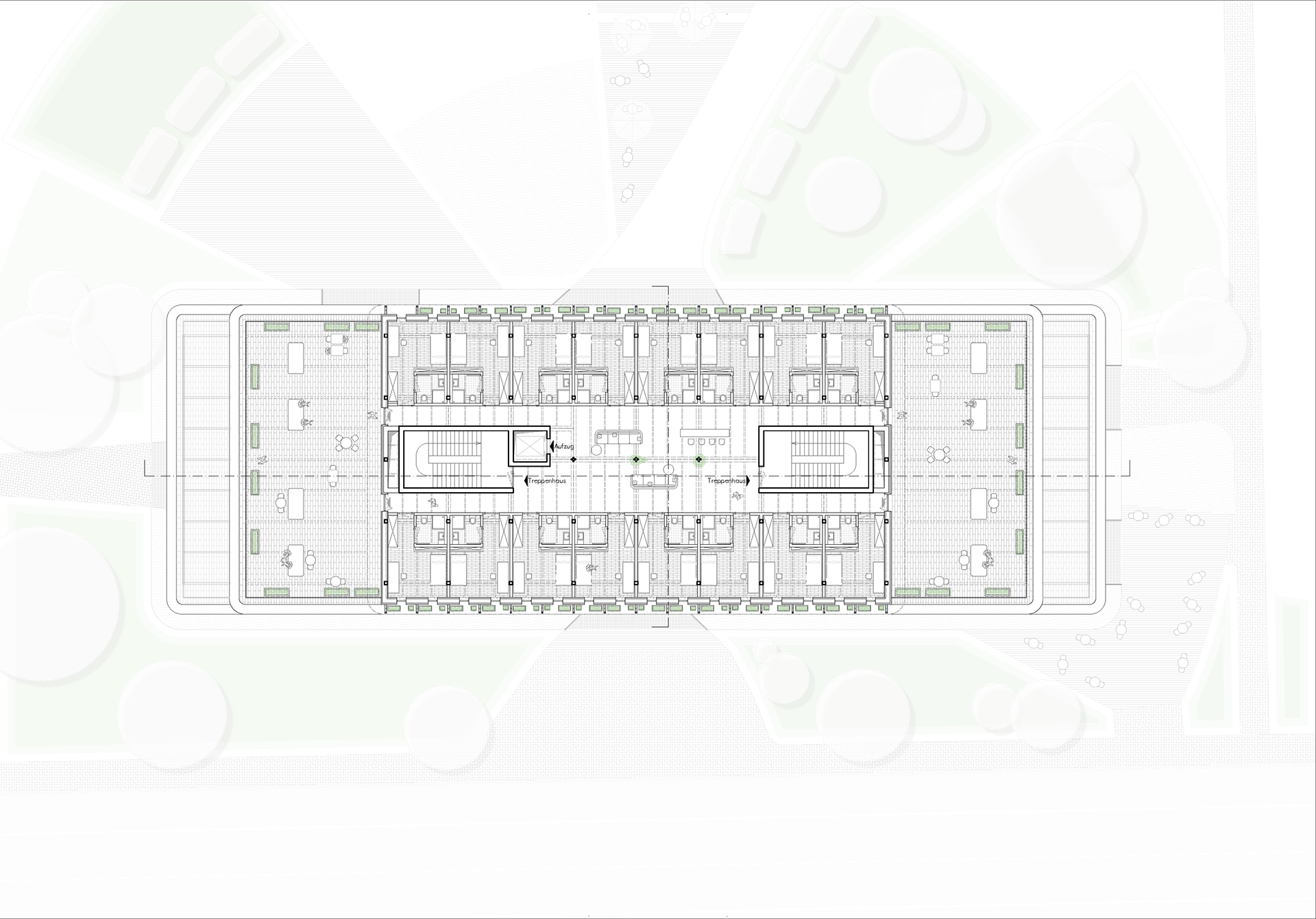
Terrace³ is creating an international forum for the WHO in Mainz's government district – a prestigious project of global significance that is also deeply rooted in local building culture and history. In the immediate vicinity of the listed Electoral Palace, the archway, and important churches, a place is being developed that continues Mainz's long tradition of medical expertise – modern, sustainable, and identity-forming. Our design is intended to bridge the gap between the past and the future: a pure timber construction that blends gently into the urban environment, taking into account sightlines, scale, and the atmosphere of the surrounding historic open spaces. The careful volume structure – characterized by the striking stepped design of the upper floors – not only creates a clear architectural silhouette, but also forms three spacious terraces on each side: 
Terrace³ as a spatial and conceptual leitmotif. These terraces become green oases: places for encounter, regeneration, and above all, urban agriculture. In combination with the spacious garden that flows around the building, productive landscapes are created that supply a locally embedded restaurant with fresh food – directly from its own cultivation. Terrace³ is more than a building. It is an architectural statement for responsible construction, local anchoring, and global cooperation. A forum that inside and outside.​​​​​​​
Name: Terrace³
Studio Type: Duo, graphic 3,8,,12,13,14,15 by @yusuf yilmaz
Time: Apr 25 - Jul 25
Location: Kaiserslautern, Germany
Context: University of Kaiserslautern, Germany
Instructor: Prof. Sabrina Wirtz

Dorian Prattes ©
Exterior Garden